Jacinto Diaz 800 | SAC0199

FICHA

  • Producto Terreno Lote
  • Operación Venta
  • Barrio San Isidro
  • Sup. Total 303,68 m2
  • Frente Lote 12,80 mts
  • Fondo Lote 25,32 mts

U$S 180.000

VENTA

Jacinto Diaz 800

San Isidro

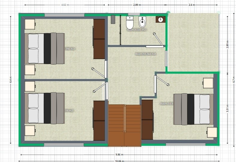
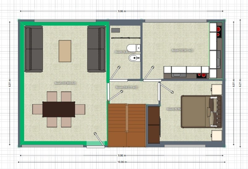
Muy buen pulmón de manzana por entrada individual desde la calle con buen ancho de lote. El lote es en ph y actualmente hay una casa que esta dividida en 2 departamentos con entradas independientes pero para tirar abajo o reconstruir. Tiene plano aprobado de una casa de 4 dormitorios y 120 metros cuadrados cubiertos y casi 14 semi cubiertos. Muy buena distribución con un baño arriba y baño abajo. Cochera para varios autos. Gran oportunidad en valor por m2. Al frente del lote hay 2 duplex en buen estado de conservación.


DETALLE DE LA PROPIEDAD

Altura Máxima: 8.5
F.O.S.: 0.6
F.O.T.: 1.2
Pisos Máximo: 3
Zonificación: RM1

*Las descripciones arquitectónicas, valores de expensas, impuestos o servicios, fotos y medidas de las propiedades son aproximados. Los datos fueron proporcionados por el propietario y pueden no estar actualizados a la hora de la visualización de este aviso por lo cual pueden arrojar inexactitudes o discordancias con las que surjan de los las facturas, títulos o planos legales del inmueble. Se pondrá a disposición del interesado la documentación necesaria a fin de realizar las verificaciones respectivas previamente a la realización de cualquier operación, requiriendo por sí o sus profesionales la documentación que corresponda.

CONTACTO





Solicitá tu tasación !

Nuestro compromiso es acompañarte y brindarte todo lo necesario para lograr tu objetivo.

Sackmann Propiedades. COPYRIGHT 2026 Luis Sackmann CMCPSI 6323

Desarrollado por LiderProp